ZÁPADNÍ MĚSTO - URBANISTICKÁ STUDIE
2024
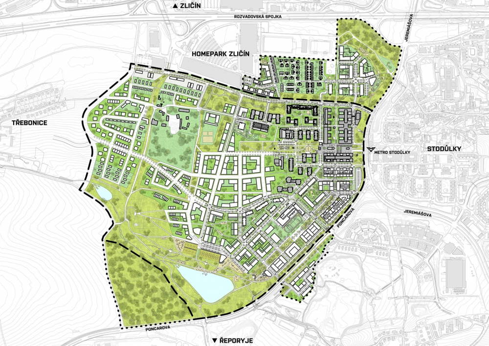
Urbanistické řešení rozvojové lokality Západního Města. Studie řeší lokalitu zejména s ohledem na veřejné prostory, stanovuje veřejnou vybavenost, parkové plochy a stavební bloky pro bydlení a ostatní funkce.
Studie slouží ke koordinaci záměrů v lokalitě. Je podkladem pro probíhající změny Územního plánu.
místo: Praha 13 - Stodůlky, Třebonice, Řepy
klient:
spolupráce: IPR, MHMP
studie: 2019 - 2024
Řešené území: 15,6 ha, HPP celkem: 1.200.000 m2, 12.500 bytů, 163 rodinných domů, 185.000 m2 HPP administrativních domů, zdravotnictví, služby: 46.000 m2 HPP, 2x základní škola: 1.800 žáků, 3x mateřská škola: 486 dětí, parkovací dům: 480 stání.
klient:
spolupráce: IPR, MHMP
studie: 2019 - 2024
Řešené území: 15,6 ha, HPP celkem: 1.200.000 m2, 12.500 bytů, 163 rodinných domů, 185.000 m2 HPP administrativních domů, zdravotnictví, služby: 46.000 m2 HPP, 2x základní škola: 1.800 žáků, 3x mateřská škola: 486 dětí, parkovací dům: 480 stání.




